成沢の家Ⅱ『景色を映す邸宅 』 2026年7月末完成予定
- お気に入りに登録する
- この物件の
- 資料請求
- 来場予約

成沢の家Ⅱ「景色を映す邸宅」 ※イメージであり実際の写真ではありません。
2026年7月末完成
「景色を映す邸宅」をテーマに、雄大な浅間山を望みながら、四季折々の自然とともに心豊かな時間を過ごせる住まいをデザインしました。片流れ屋根と大開口のガラスウォールが外観を引き立て、南面の大きな窓からはやわらかな日差しが差し込み、吹き抜けと共に開放感あふれる空間を創出します。2階には浅間山を一望できるシアタールームを配置。大画面の映像を楽しみながら、窓の外に広がる雄大な景色とともに、ここでしか味わえない特別なひとときを演出します。さらに、愛車を収めるガレージや、自然を感じながら過ごせるテラスも備え、軽井沢での上質な暮らしを叶える邸宅となりました。


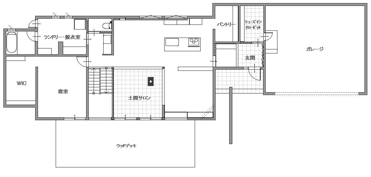
◆Plan

延床面積:234.34㎡/70.8坪
1階121.73㎡/約36.8坪 2階 66.24㎡/約20.0坪
ガレージ46.35㎡/約14.0坪)
間取り:3LDK+土間サロン+ガレージ
◆Image ※イメージであり実際の写真ではありません。実際には、一部家具は付きません。
【Kitchen・Dining】

スタイリッシュな対面キッチンを配置。フロントオープン食洗器、電子オーブンレンジ、背面収納と家事スペースと充実したキッチン空間です。
【Dining】

【Living】

リビングと土間サロン、吹き抜けにかけて縦と横のつながりを意識しました。開放的で気持ちのいい空間が広がるプランです。
【土間サロン】

信州産のクリ材の床やヒノキの板張り、重厚なタイルのアクセントウォールに囲まれて、落ち着いた雰囲気。薪ストーブの炎を眺めながら、ゆったりとした時間をお過ごしください。
【2階 サブリビング】

風と光と信州の景色を感じる、贅沢な空間に仕上げました。

≪ 設備・特徴 ≫
自然素材使用(無垢の山桜床材/内壁珪藻土塗り)/薪ストーブ(skantherm 603Tunnel)/1F床暖房/エアコン(リビング・寝室×3)/
バスルーム1階・2階/土間サロン/吹き抜け/ウォークインクローゼット/TOYO KITCHEN/IHクッキングヒーター/フロントオープン食器洗浄乾燥機/
電子オーブンレンジ/ガス乾燥機館 乾太くん/スマートホーム機器/家具一式/高性能トリプルガラス/
長期優良住宅/設計性能評価取得/インナーガレージ2台分/2階フリールーム(シアタースペース)
※外観パースのサウナは付きません。ご希望の場合は、別途工事にて承ります。
土間サロン 3つの使い方
![]() |
![]() |
![]() |
|
point1.自由に!自分らしさ無限大 土間サロンは何をする場所ですか?という質問に答えるのであれば、それは「自分らしい時間」を過ごす場所です。決まった用途がないからこそ、自由に、あなたらしくを実現できます。 |
point2.信州と!信州の自然と近い暮らし 私たちの住む信州は、自然環境に恵まれています。だからこそ、住まいの空間を家の外に向かって開くことで、自然と近しい豊かな暮らしが叶います。 |
point3.快適に!実現する高い断熱性 「土間は寒そう...」と心配されますが大丈夫。土間サロン下にも断熱材が入り、断熱性能の高いサッシで、いつでも快適に過ごせます。 |
例えばこんな使い方も →→→ 土間サロンのある暮らし
![]() |
![]() |
![]() |
![]() |
軽井沢は「陽当たり」と「湿気対策」が大切です!

「陽当たりが良い」ことで、軽井沢特有の夏の湿気や冬の寒さ対策が出来ます。湿気を逃がしカビないカラッとした住宅、冬の日中暖房に頼りすぎない暖かい住宅をご提案いたします。
|
軽井沢の冬の晴天率は90%!太陽の光を効率よく取り込める「立地」と「間取り」で冬の軽井沢ライフを暖かく。 |
鬱蒼とした森の中では、陽の光が届かず春・秋・冬、昼夜とも暖房が必要です。夏は風通しが悪くカビが生えやすくなります。 |
|
軽井沢の湿度は80%以上。特に6月~10月の湿度は高くカビが生えやすい環境です。住宅の湿気対策・カビ対策は必須。 |
【エアパスソーラー工法】
太陽熱を活用し壁体内に空気の流れをつくります。夏場は熱気と湿気を外に出しカビ対策に効果的。
|
「県産材使用率85%超オーガニックにこだわった本物の木の家」

これまで20年以上長野県産材の家づくりに取り組み、おかげさまで1400棟を超える住宅を作って参りました。主要構造部は100%県産材を使用し建物全体も85%以上。その他は良質な国産材を使用しております。
|
無垢材はもちろん、調湿・脱臭などの機能を持つ珪藻土、和紙や天然由来の塗料など厳選した素材を多用しております。 |
「わぁ~木のいい香り」 森林浴の様に深呼吸が心地よい。無垢の床に床暖房の温もりを感じ、素足で歩く気持ちよさは格別。 |
|
熟練した職人らが丁寧に仕上げる住宅です。「長期優良住宅」認定、耐震性・断熱性・維持管理・劣化対策に優れております。 |
親子で薪割りした薪をストーブにくべ、パチパチと薪がはぜる音を聞きながら、一緒に炎を眺める。とても豊かな時間が流れます。 |
| 物件所在地 | 北佐久郡軽井沢町大字長倉字川東7番77、大字軽井沢字境新田亀原1019番416ほか |
|---|---|
| 価格 | 3億2,000万円 |
| 土地面積 | 1412.01㎡(427.13坪) |
| 学校区 | 東部小学校(3.6km 徒歩49分)、軽井沢中学校(4.7km 徒歩64分) |
| 都市計画 | 非線引き区域 |
| 用途地域 | 第一種低層住居専用地域 |
| 地目 | 原野 ※地目変更予定 |
| 建ぺい率 | 30%(緩衝地域) |
| 容積率 | 50%(緩衝地域) |
| 設備 | 電気、町営上水道、浄化槽、プロパンガス |
| 接道種別 | 42条1項3号道路に南側約3m接道 |
| 道路幅員 | 約5.5m |
| 私道負担面積 | あり 1019番417を1/2所有 |
| 交通 | JR新幹線 軽井沢駅 約3.1km(車で8分) 、碓井軽井沢IC 約9.9km(車で11分) |
| 取引形態 | 売主 |
| 引渡し予定時期 | 2026年7月末 |
| その他必要費用 | 水道加入金132,000円、表示登記・保存登記費用、固定資産税の清算金(起算日:4月1日) |
| その他条件 | 法第22条区域、長野県景観条例、緩衝地域(軽井沢町自然保護対策要綱) |
| 総区画数 | 2区画 |
| 販売区画数 | 1区画 |
| 工事完了予定年月 | 2026年7月末 |
| 建物面積 | 234.34㎡/70.8坪(1階121.73㎡/約36.8坪、2階 66.24㎡/約20.0坪、ガレージ46.35㎡/約14.0坪) |
| 構造 | 木造軸組2階建 + エアフロー工法 |
| 建築確認番号 | 25NJU-10-00038号 |
| 情報登録日 | 2025年10月12日 |
| 免許番号 | 長野県知事(1)第5812号 |
| 性能取得 | 長期優良住宅認定通知書/設計性能評価書 |
| 優遇制度 | フラット35S【金利Aタイプ】を利用可能、耐震3等級割引適用(火災保険) |
![]()
工房信州の家づくり コンセプト

一棟一棟、土地の環境に合わせてつくる工房信州の家の建売住宅。
すべてのプランニングに共通する、基本の指針があります。
パッシブデザインを取り入れて、夏はクーラーに頼らず、冬は陽だまりのあたたかさを感じる家にすること。
そして信州の豊かな自然環境や景観、四季の移ろいを住まいに上手に取り入れる工夫をすること―。
これが、工房信州の家の設計デザインコードです。
Life style 信州らしい暮らし
- 信州を楽しむ住まい「土間サロン」
![]() |
![]() |
![]() |
![]() |
Harmony 信州の家は、信州の木で
地域に根差した住宅会社として、2000年から長野県産材での家づくり一筋に取り組んできました。
地元製材所・山仕事師とグループを組み、木材一貫生産システムとして全国でも前例のない共同事業を確立したことで、全棟で85%の県産材使用が可能に。
信州の気候風土に育まれた木材で、健やかでぬくもりに満ちた住まいをお届けします。
![]() |
![]() |
Sustainable エアパスソーラー工法
信州の豊かな気候風土。
厳しい側面もありますが、自然力の良い面だけを上手に住まいに活かす工夫が「エアパスソーラー工法」です。
換気口の開閉による住まいの衣替えで、夏は木陰の涼しさ、冬は陽だまりの暖かさに包まれます。
![]() |
![]() |
すべてが「長期優良住宅」、だから安心
- 耐震等級3(建築基準法レベルの1.5倍の強度)
- 断熱等性能等級4(等級2の1/2程度の年間冷暖房負荷)
- 維持管理対策等級3(配管の点検・補修の容易さ等、手厚い配慮)
- 劣化対策等級3(三世代・75~90年程まで長持ちする耐久性)
4つの等級すべて【最高等級】の住宅性能を誇ります!
![]() |
![]() |
































